PRO : chaudière aux pellets grande puissance




Puissance industrielle avec fiabilité de la grande série.

175 & 250kW - jusqu'à 1.000 kW en cascade.







PRO : fiabilité industrielle

Puissance efficacité et performance, la chaudière "industrielle" PRO est le fruit de 15 années de conception. Composants de qualité, dimensionnement étudié et qualité de finition de Guntamatic garantissent une sécurisation extrême, des coûts d‘entretien faibles et une longévité dans le temps.

S‘ajoute à cela, en terme de sécurité, une fabrication modulable en cascade. Même si l‘un des modules s‘arrête, les autres continuent de travailler normalement. La sécurisation, par rapport à un arrêt total, constitue un élément déterminant pour le monde industriel et les collectivités locales.

Full automatique : remplissage par aspiration, nettoyage échangeur et cendrier XXL sur roulette.

La PRO est neutre en CO2 et préserve le climat. Elle convient aux bâtiments qui consomment de 60 à 400 tonnes de pellets/an.

Brûleur à gradins

Une grille à gradins autonettoyante garantit le mouvement nécessaire des pellets dans le lit de combustion. Un va et vient d'une marche sur deux transporte les pellets jusqu'à l'évacuation des cendres.

Chambre réfractaire

Chambre de combustion réfractaire : en carbure de silicium. Ce matériau résiste et est adapté aux hautes tempéraures qu'il conserve. Ceci contribue à garder une parfaite combustion.

Dôme

L‘architecture de la chambre de combustion, en dôme, permet une combustion parfaite et une avancée modulable du combustible dans les différentes zones de brûlage.




1 aspiration 2 vis pellets

Pour optimaliser les grosses réserves, 2 vis sont installées et raccordées à une seule aspiration. La chaudière gère le module qui passe d'une vis à l'autre.

Aspiration cendres

Un cendrier avec roulettes recueille les cendres. En option, un système d'aspiration pour récolter les cendres dans une poubelle de 240 litres.

Durable

Exécution extrêmement robuste de la vis sans fin et du malaxeur, très haute qualité des engrenages et des moteurs.



Régulation complète

Gestion de 9 circuits, 3 à 6 ECS, tampons, pompes bouclage et cascade de 4 chaudières.

Cascade

A ce niveau de puissance, la cascade de plusieurs chaudières est une solution souple et fiable. 4 PRO peuvent être gérées en cascade.

Gestion à distance

Par internet, gestion de l'installation via ordinateur et/ou APP sur smartphone. Consultation : infos t°, quand vider les cendres, etc. Notification si défaut.




Qualité

La chaudière est composée de matériaux nobles. La production, l'assemblage et la finition sont contrôlés et répondent à de très hautes exigences.

Fiabilité

Les composants électroniques et électriques sont communs à toutes les chaudières GUNTAMATIC. Ceci assure un très haut niveau de fiabilité.

Longévité

Les moteurs et ventilateurs sont dimensionnés pour une durée de vie de plus de 20 ans : avec réserve de couple très élevée.

Réserves pellets


Quel volume prévoir ?

Une chaudière fonctionne l'équivalent de 1500 à 2000 heures / an : à pleine puissance. Pour les nouveaux bâtiments ou les installations existantes, on peut déterminer le volume de pellets consommé /an. A ce niveau de consommation, idéalement, la réserve de pellets devrait être remplie deux à plusieurs fois par an. Toutefois, pour les grandes consommations annuelles, il est préférable de dimensionnner une réserve pour être livré par camion complet.

Comment transporter les pellets ?

Les pellets doivent être acheminés de la réserve jusqu'au silo journalier de la chaudière. Pour atteindre la meilleure fiabilité, GUNTAMATIC a opté pour un un système pneumatique combiné à une vis. Ainsi GUNTAMATIC gère la vitesse de la vis dans la réserve et peut donc maîtriser le débit de transfert des pellets dans le système d'aspiration. Dans une plage horaire déterminée, la chaudière aspire des pellets une fois par jour. Grâce à la gestion du débit, la distance entre la chaudière et sa réserve peut aller jusqu'à 25 mètres : sans dégât ni bourrage.




PRO + Flex


Avec une ou deux vis centrale et des plans inclinés, une réserve "flex" est construite au départ d'une pièce existante ou avec des cloisons.

Cette réserve "en dur" demandera plus de travail pour sa réalisation, mais sera à l'avenir la solution qui traversera au mieux le temps.

Pour augmenter le volume de pellets et donc diminuer la perte de place des plans inclinés, la PRO utilise 2 vis par chaudière. Un commutateur bascule automatiquement l'aspiration d'une vis à l'autre.

Soit la régulation alterne à chaque remplissage : pour que le stock de pellets se vide uniformément. Soit on laisse une première vis se vider puis la régulation passe sur l'autre vis automatiquement.

Vis Flex


La vis flex est disponible en longueurs de 100, 150, 200, 250, 300, 350, 400, 450 et 500 cm. Attention, cette mesure donne la partie ouverte de la structure : là où la vis est visible. Forcément, la longueur disponible à l'intérieure de la réserve doit être supérieure à cette mesure.



La vis est assemblée avec 4 types d'éléments :
- un support final avec roulement et couvercle de protection.
- des éléments ouverts de 100 ou 150 cm avec gorges pour panneaux inclinés
- un élément fermé pour le passage mural, avec moteur et trappe de visite

En combinant ces éléments, il est possible de passer dans de petits espaces et d'assembler une longue vis.

accessoires remplissage silo



PRO chaudière aux pellets

PRO 175 250  
Classe d'efficacité énergétique A+ A+  
Combustible A1 A2 A1 A2 ENplus
Puissance nominale 175 250 kW
Plage de t° chaudière 60 à 85 60 à 85 °C
Volume d'eau 572 572 litre
Pression de service max. 3 3 bar
Départ retour 2'' 2'' Ø pouce
Débit pompe bouclage 16200 21500 lit / h
Besoin de tirage de cheminée 0,10 0,10 mbar
Tube de fumée 250 250 Ø mm
Ventillation chaufferie min. 725 1100 cm²
Longueur aspiration max. 25 25 m
Cendrier 240 240 lit
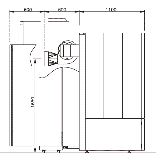
Hauteur local min. 250 250 cm
Poids de transport env. 2200 2200 kg
Raccordement électrique 400 / 20 400 / 20 V / A
PRO

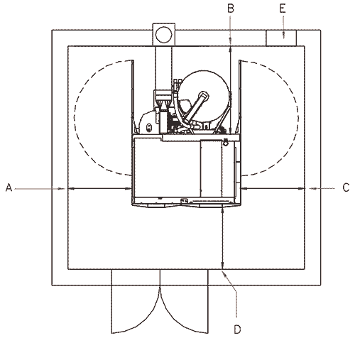
PRO 175-250





A : distance à gauche : 100 cm
mini 0 cm : si plus de 100 cm à droite

B : distance à l'arrière : 230 cm
mini 130 cm, si plus de 100 cm à gauche

C : distance à droite : plus de 100 cm
mini 0 cm, si 130 cm à gauche et à l'arrière

C : distance à l’avant : 120 cm
mini 100 cm

HSP : idéale > 260 cm, mini : 250 cm.

Téléchargements